Villetta indipendente con giardino (2)
Via Gramsci a Pozzolengo (BS).
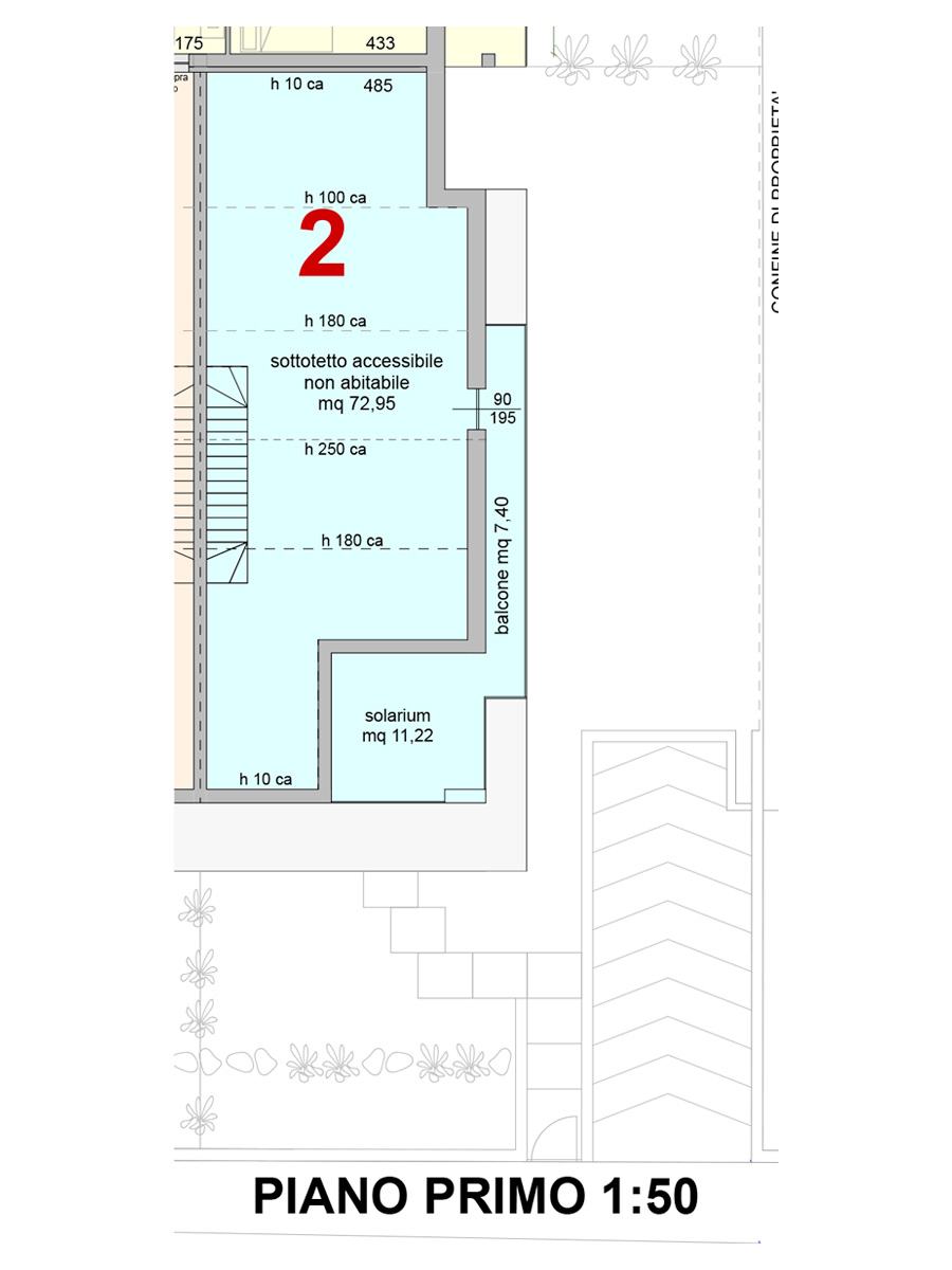
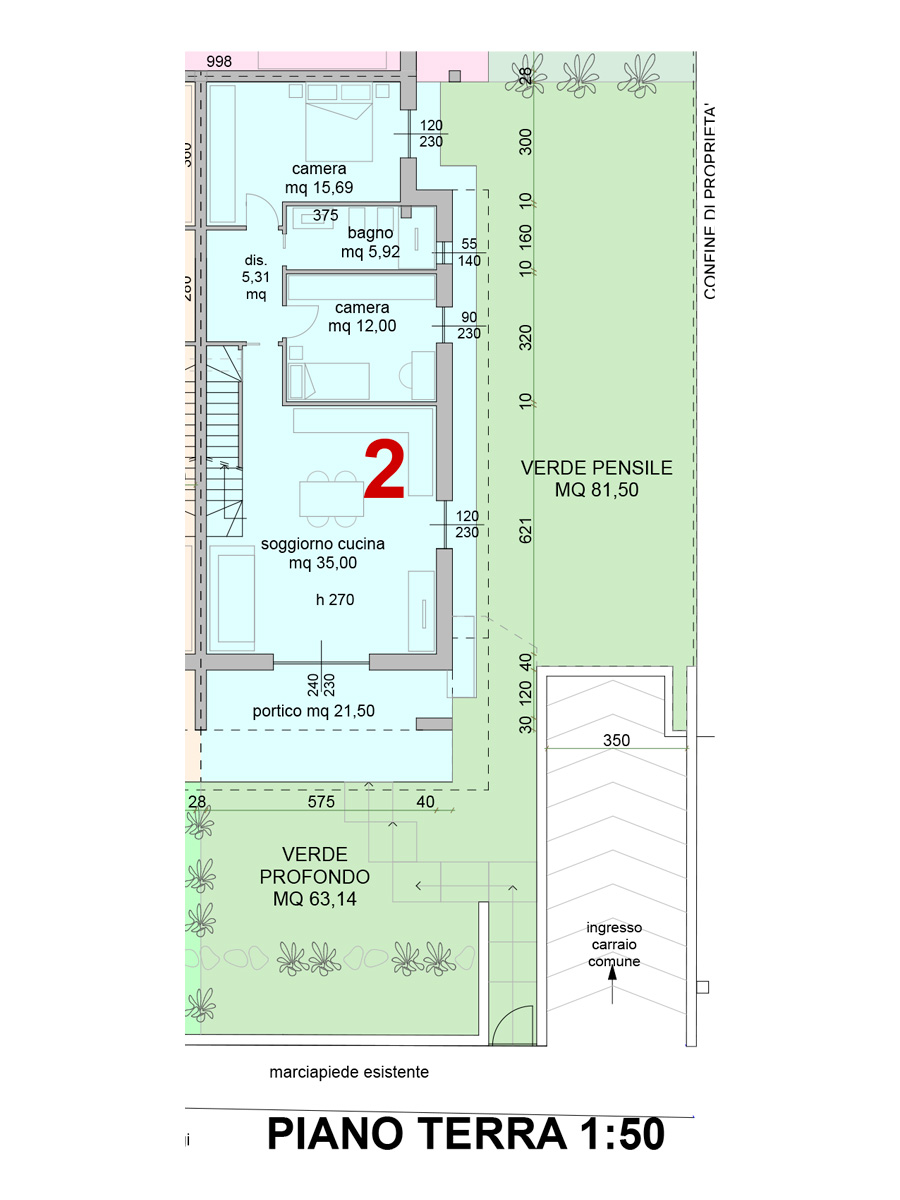
Realizzazione nuova villetta indipendente su unico piano oltre a sottotetto in palazzina di sole quattro unità, ampio giardino, classe A, completamente elettrica con impianto fotovoltaico, ampio porticato fronte soggiorno e solarium a piano primo, lavanderia, ampia taverna, garage doppio, finiture personalizzabili.
Prezzo € 475.000 + IVA.








